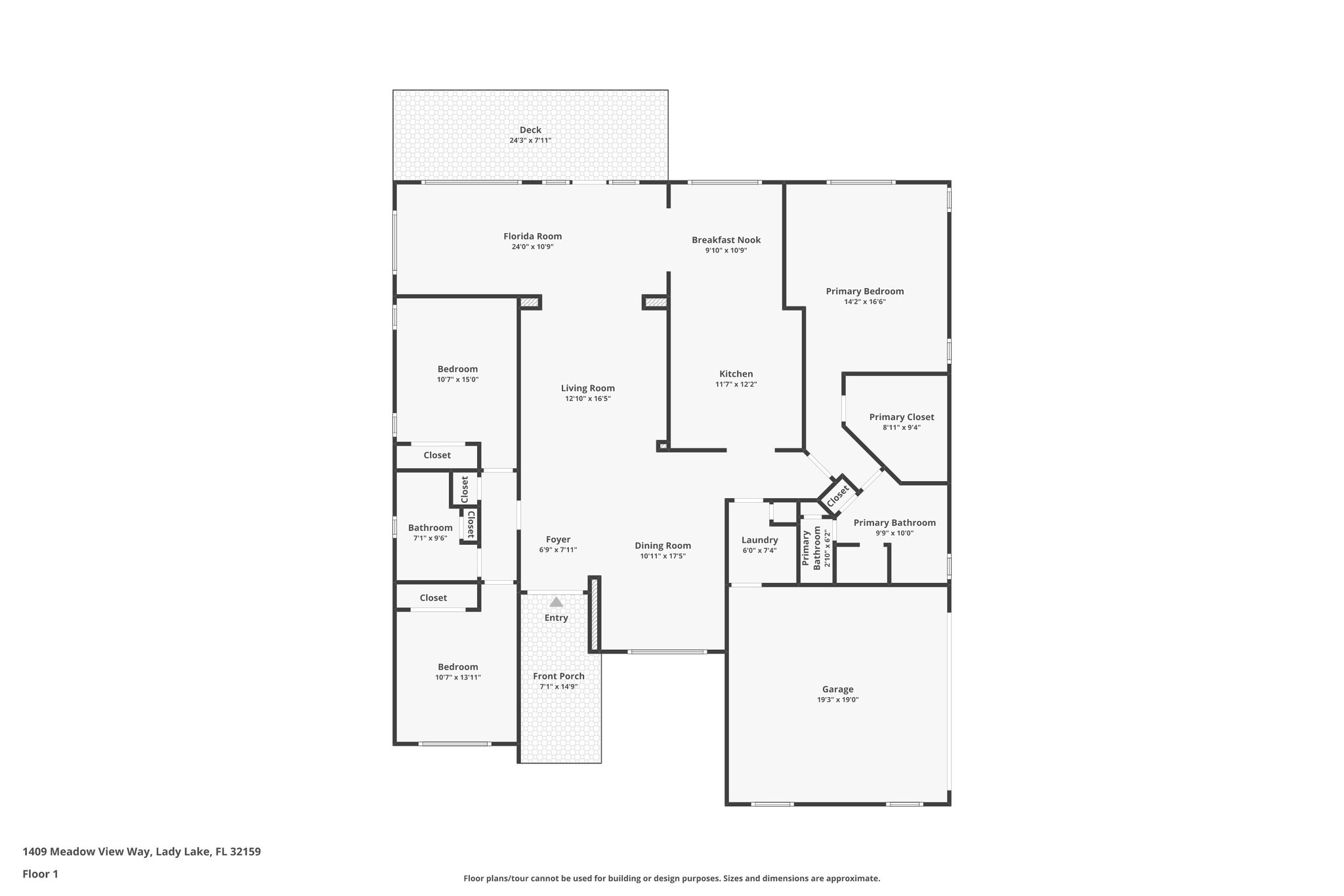
1409 Meadow View Way, Lady Lake, FL 32159
Toggle Navigation
Images
Videos
Floor Plans
3D Tour
Map
1409 Meadow View Way
Lady Lake, FL 32159
Scroll to Content
Images
Slideshow
Photo Grid
Hide
Previous
Next
Show more
Videos
Floor Plans
Slideshow
Photo Grid
Hide
Previous
Next
3D Tour