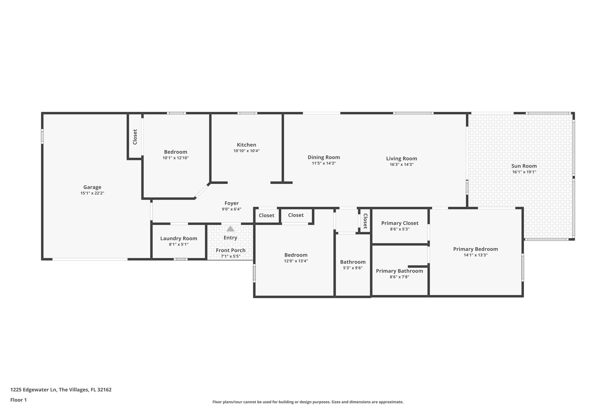
1225 Edgewater Ln, The Villages, FL 32162
Toggle Navigation
Images
Videos
Floor Plans
3D Tour
Map
1225 Edgewater Ln
The Villages, FL 32162
Scroll to Content
Images
Slideshow
Photo Grid
Hide
Previous
Next
Show more
Videos
Floor Plans
Slideshow
Photo Grid
Hide
Previous
Next
3D Tour